Place de la Paix – 95300 PONTOISE




NATURE DU PROJET
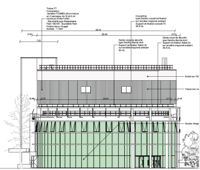
Le présent projet a pour objectif la rénovation énergétique du Théâtre des Louvrais à Cergy-Pontoise.
Cette rénovation énergétique comprendra la mise en place d’un système d’isolation par l’extérieur avec diverses finitions, à savoir un bardage en tôle ondulée et une finition enduite.
L’ensemble des menuiseries extérieures seront remplacées aux dimensions dites existantes.
Les murs rideaux se verront recevoir de nouveaux vitrages, cela afin d’apporter une isolation plus importante au bâtiment. Toujours dans ce sens, des brise-soleils à ossatures métalliques seront posées en débords des murs rideaux existants.
L’ensemble de l’étanchéité existante du bâtiment sera déposé et remplacé par un système Foamglass.
La couverture zinc en rampant sera également remplacé.
M OUVRAGE
CA CERGY-PONTOISE
Parvis de la Préfecture – CS 80309
95027 – Cergy-Pontoise Cedex
MME GOCMEN Lynda
M ŒUVRE
Forme architecture urbanisme
49 Bd la Chapelle 75010 Paris
M François Morel
MONTANT DES DES TRAVAUX en K€
3025
PLANNING DU PROJET
DATE DE DÉBUT DE LA MISSION: 18/11/24
DATE DE FIN DE LA MISSION: 30/04/26
DURÉE DES TRAVAUX
12 mois
MISSION DE COORDINATION SPS DE 2° CATEGORIE EN CONCEPTION ET RÉALISATION ASSURÉE PAR QUARTET
SPÉCIFICITÉS DU PROJET
SITE CONTRAINT (forte densité de construction)
PRÉSENCE D’AMIANTE
PARTICULARITÉS LIÉES A L’ENVIRONNEMENT
RISQUES SUR AVOISINANTS
