125 rue de Stalingrad 93000 BOBIGNY

NATURE DES TRAVAUX
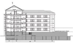
Désamiantage et Restructuration complète du bâtiment
Larrey B (phase 3) du R+1 au R+6
Création d’un bloc de 2 ascenseurs à l’Est
Modification de 2 escaliers de secours de l’aile centrale
Intervention en limite sur les bâtiments contigus

M OUVRAGE
ASSISTANCE PUBLIQUE – HÔPITAUX DE PARIS 3 Avenue Victoria 75004 PARIS
M ŒUVRE
GPAA – 2 Allée des Hélices 44200 NANTES
PLANNING DU PROJET
DATE DE DÉBUT DE LA MISSION : 22/08/2014
DATE DE FIN DE LA MISSION : 31/12/2017
MISSION DE COORDINATION S.P.S. EN PHASE CONCEPTION ET EXÉCUTION DE CATÉGORIE 1 ASSURÉE PAR QUARTET

SPÉCIFICITÉS DU PROJET
Restructuration lourde d’un bâtiment enclavé entre des services hospitaliers en activité
Gestion complexe des flux personnels à l’intérieur de bâtiment (RdC hors chantier) que des véhicules à l’extérieur (SAMU, pompiers, engins de chantier
SPÉCIFICITÉS LIÉES A L’ENVIRONNEMENT
désamiantage et déplombage préalable du bâtiment
Gestion du risque de maladies nosocomiales

